10.03.2026

Дизайн и ремонт маленькой квартиры: фото примеры и решения для небольшой площади

Содержание

  1. Ключевые особенности компактного жилья
  2. Какой стиль подойдет маленькой квартире?
  3. Реальные планировки маленьких квартир до 35 кв.м из портфолио Domeo
  4. Видео ремонта от Domeo в квартирах до 35 кв.м
Кухня в светлых тонах с гарнитуром в бирюзовом цвете и акцентом на деревянные элементы

Малогабаритная квартира — это не ограничение, а творческий вызов. Правильный подход к планировке, свету и выбору стиля может превратить скромные метры в стильное, функциональное и невероятно красивое пространство для жизни.

В этой статье команда Domeo делится профессиональным опытом. Мы расскажем об основных особенностях компактного жилья, с которыми вы столкнётесь, посоветуем, какие стили интерьера работают в нём лучше всего, и покажем, как теория воплощается на практике. Вас ждут реальные фото и видео наших завершённых проектов — наглядные примеры того, как мы решаем сложные задачи и создаём комфорт в каждом квадратном метре.

Ключевые особенности компактного жилья

Принцип №1: Вертикаль вместо горизонтали

Главная ошибка — использовать только площадь пола. Грамотная планировка малогабаритки требует работы с объёмом: задействуйте стены и высоту. Это реализуется через:

Высокие шкафы и стеллажи до потолка, которые заменяют несколько низких тумб;
Подвесная и настенная мебель: консоли, телевизоры, полки, кровати с системами хранения внизу;
Многоуровневые решения: подиумы с выдвижными ящиками, антресольные этажи для спальной или рабочей зоны;
Вертикальное зонирование с помощью цвета, освещения или материалов на стенах.

Спальня в светлых тонах со встроенной системой хранения и акцентом на темное дерево

Принцип №2: Многофункциональность каждого элемента

В условиях дефицита метров каждый предмет должен работать на максимум. Мебель-трансформер и умная планировка — ключ к этому.Основные приёмы:
◾️ Раскладные диваны, откидные кровати, выдвижные столешницы;
◾️ Островной стол как барная стойка, диван-разделитель пространства;
◾️ Ящики под кроватью, пуфы с отделениями, скрытые ниши;
◾️ Коридор как гардеробная или мини-кабинет.

Современная кухня-гостиная в нейтральных серых и бежевых тонах с мраморной столешницей у барной стойки

Принцип №3: Свет и цвет как инструменты коррекции

Усильте естественный свет зеркалами и глянцем, а искусственное освещение сделайте многослойным — это поможет зонировать пространство и придать ему глубину.

Для отделки выбирайте светлые холодные тона, оставив яркие и тёмные цвета для локальных акцентов. Оптически «раздвинуть» стены помогут горизонтальные линии, а вертикальные — визуально поднимут потолок.

Яркая терракотовая спальня с прикроватным столиком и напольной тумбой с зеркальными панно-дверцами

Какой стиль подойдет маленькой квартире?

Стили, которые «раздвигают» стены (светлые и воздушные)

Рассмотрим направления, где на первом месте — визуальное увеличение пространства. Это скандинавский, средиземноморский стиль и современный минимализм. Их объединяет светлая палитра, простые формы и максимум естественного света.

Стили с акцентом на умное хранение (функциональные)

Если главная задача — спрятать множество вещей, обратите внимание на стили, где мебель и планировка неотделимы от систем хранения. Яркие примеры — современный стиль, японский минимализм (с его встроенными нишами) и функциональный контемпорари.

Стили, создающие иллюзию уюта (камерные и тёплые)

Чтобы маленькая квартира не казалась холодной «коробкой», её можно наполнить атмосферой. В этом помогут элементы эклектики, лофта, бохо-шика (дозированно) или современной классики с их текстурами, тёплыми акцентами и камерным освещением. Ключевая идея — добавить глубины и характера даже на скромных метрах.

Реальные планировки маленьких квартир до 35 кв.м из портфолио Domeo

Объект: студия 28 кв.м в ЖК ФизтехСити

В этой квартире удалось разместить всё: прихожую с хранением, спальню с кроватью в нише, рабочее место у окна, полноценную кухню с обеденным столом на двоих и ванную комнату.
Пространство сделали максимально открытым — стеклоблоки в зоне кухни пропускают свет и не перегружают планировку.
Интерьер решили в нейтральной гамме с акцентами, а синяя ванна стала неожиданной деталью по желанию заказчика.

Планировка квартиры в нейтральных тонах с цветовыми акцентами и стеклоблоком в зоне кухни

Объект: квартира 26 кв.м в ЖК Живописный

Интерьер квартиры для молодой пары выполнен в натуральной гамме: светло-бежевые, травяные и кофейные оттенки создают спокойную и тёплую атмосферу. В планировке удалось разместить всё необходимое — кухню-гостиную, спальню с рабочим местом, гардеробную и душевую. Пространство получилось цельным, уютным и при этом функциональным для двоих.

Планировка студии в натуральных оттенках с размещением всего необходимого

Объект: квартира 21 кв.м в ЖК Павелецкая Сити

В этой студии получилось собрать всё, что нужно для комфортной жизни: рабочее место, где удобно заниматься делами, полноценную кухню и вместительный шкаф для вещей. При этом в интерьере спокойно используются тёмные стены и яркие детали — они добавляют пространству глубины и характера. А благодаря разным текстурам и предметам искусства пространство выглядит по-настоящему своим.

Планировка квартиры в насыщенном синем цвете с яркими акцентами в виде настенных картин

Объект: квартира 25 кв.м на ул. Фёдора Котанова, Санкт-Петербург

Проект студии разрабатывался для молодого человека. Задача была сделать интерьер достаточно брутальным для сына, но при этом уютным и приятным для мамы, которая будет приезжать в гости из другого города.
Пространство зонировали стеклянной перегородкой — она отделяет спальню от кухни-гостиной, но сохраняет ощущение открытости. В отделке использовали серые и бежевые тона в сочетании с деревом и чёрными акцентами.

Планировка стильной квартиры в серо-бежевых оттенках с применением черных акцентов

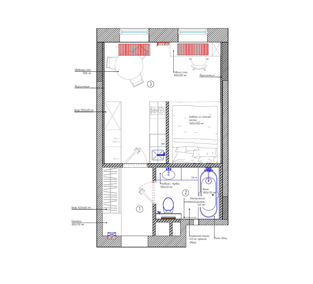
Объект: квартира 33 кв. м на ул. Звенигородское шоссе

Однокомнатная квартира для студентки была кардинально перепланирована, чтобы совместить все функции для учёбы, отдыха и общения.
Исходная тесная планировка с малогабаритной кухней и санузлом уступила место современному и эргономичному дизайну.

Планировка однушки для девушки-студентки преимущественно в светлых оттенках

Видео ремонта от Domeo в квартирах до 35 кв.м

Евродвушка 35 кв.м в ЖК Кит

Студия 21 кв.м в ЖК Левел Нагатинская

Студия 25 кв.м в новостройке

Услуги Domeo по ремонту небольших квартир

Ищете компанию для выполнения ремонта?

Рассчитайте стоимость Вашего ремонта
и получите консультацию от нашего специалиста!
Расчет сметы и консультация бесплатные и ни к чему Вас не обязывают