27.03.2026

Перепланировка в апартаментах: что разрешено и как узаконить изменения

Содержание

  1. Что значит апартаменты?
  2. Можно ли апартаменты перевести в квартиру?
  3. Виды перепланировки в апартаментах
  4. Пошаговый алгоритм узаконивания перепланировки в апартаментах
  5. Риски и последствия незаконной перепланировки в апартаментах
  6. Что нужно узаконивать в апартаментах со свободной планировкой?
  7. Вывод
Игровая комната с фигурной барной стойкой и винной галереей

Апартаменты давно перестали быть экзотикой на рынке недвижимости. Их выбирают за гибкость, удобное расположение и часто более доступную цену по сравнению с квартирами. Но когда дело доходит до ремонта и перепланировки, многие собственники сталкиваются с неожиданными сложностями. В отличие от квартир, где процесс узаконивания изменений более‑менее стандартизирован, для апартаментов действуют свои правила — и здесь важно чётко понимать, что можно, а что нельзя делать. Здесь нет единого регламента: требования зависят от статуса помещения, проекта здания и позиции управляющей компании.

В этой статье разберём, какие виды перепланировки возможны, что можно делать без согласования, какие изменения требуют обязательного разрешения, а также пошагово опишем процедуру узаконивания, чтобы ремонт прошёл без штрафов и проблем с продажей в будущем.

Что значит апартаменты?

На первый взгляд апартаменты мало чем отличаются от квартиры: на планировках застройщика есть всё те же комнаты, кухни, санузлы, коридоры и даже балконы. Но по закону это принципиально другой формат недвижимости.
Так апартаменты — это жилое или нежилое помещение?

С юридической точки зрения — нежилое, предназначенное для временного пребывания.

Прописаться в апартаментах можно только через суд и с определёнными ограничениями, а коммунальные услуги рассчитываются по коммерческим тарифам, которые заметно выше квартирных.

Кухня-гостиная с акцентным темно-синим диваном и круглым столом с оригинальным дизайном

При этом апартаменты часто расположены в современных комплексах с развитой инфраструктурой, имеют качественную отделку и стоят дешевле квартир в том же районе. Это делает их привлекательным вариантом для инвестиций или для тех, кто готов мириться с юридическими нюансами ради выгодной цены и локации.

К апартаментам относятся разные типы недвижимости:
Апарт-отели (гостиничный формат с ресепшеном и обслуживанием, ориентированный на краткосрочное проживание).
Кондоминиумы (апартаменты в жилых комплексах, где владельцы совместно управляют общим имуществом, близки к квартирам, но остаются нежилым фондом).
Многофункциональные комплексы (здания, объединяющие жилые, офисные и торговые площади, с развитой инфраструктурой, но возможными ограничениями по режиму).
Доходные дома (современная версия исторического формата, где апартаменты сдаются в аренду, а управление централизовано).

Кто контролирует перепланировку?

В случае с апартаментами система контроля перепланировки отличается от привычной для квартир. Кто и за что отвечает?

Мосжилинспекция — участвует только в исключительных случаях, например, если апартаменты официально переведены в жилой фонд. В остальных ситуациях её контроль на апартаменты не распространяется.
Управляющая компания — главный контролирующий орган. Именно УК выдаёт технические условия на перепланировку, проверяет проект, согласовывает начало работ и подписывает акт о завершении. Также она вправе требовать демонтаж незаконных конструкций, если они нарушают правила безопасности или мешают соседям.
Пожарный надзор и Роспотребнадзор — подключаются при необходимости. Первый — если перепланировка затрагивает пути эвакуации или системы пожаротушения. Второй — если изменения касаются вентиляции и санитарных норм.
Собственник — несёт полную ответственность за всё, что происходит внутри его помещения. Однако без согласования с УК и профильными службами любые изменения он проводит на свой страх и риск.

Можно ли апартаменты перевести в квартиру?

Вопрос перевода апартаментов в квартиру — один из самых частых среди собственников и покупателей. Технически такая возможность существует, но на практике это сложный и длительный процесс.

Условия для успешного перевода

▪️ Здание должно быть спроектировано как жилое или соответствовать требованиям к жилым помещениям: инженерные коммуникации, нормы инсоляции, высота потолков, необходимая инфраструктура.
▪️ Дом должен иметь статус, допускающий изменение категории, либо быть включён в городские программы, предусматривающие перевод.
▪️Процедура включает сбор документов, проведение экспертизы, согласование с администрацией и внесение изменений в ЕГРН.

Перевод занимает несколько месяцев и не всегда даёт положительный результат. Перед началом стоит изучить конкретный объект и проконсультироваться с юристом.

Спальня в мягкой палитре нежных оттенков с золотыми элементами

Виды перепланировки в апартаментах

Возможности перепланировки напрямую зависят от статуса помещения, проекта здания и решений управляющей компании. Одни изменения можно вносить без лишних согласований, другие требуют обязательного проекта и разрешений, а третьи — запрещены полностью, даже если вы готовы потратить время и деньги на узаконивание. Разберём три основных сценария, с которыми сталкиваются собственники.

  • Перепланировка без согласования
    Косметические изменения, не затрагивающие конструкции и инженерные системы, согласования не требуют. Вы можете:
    ▪ менять отделку стен, потолков и полов;
    ▪ переклеивать обои и укладывать плитку;
    ▪ устанавливать межкомнатные двери без расширения проёмов;
    ▪ встраивать шкафы и заменять сантехнику на аналогичную при условии, что точки подключения остаются на месте.
  • Что требует обязательного согласования
    Согласование необходимо, если меняется геометрия или инженерные системы. В этот перечень входят:
    ▪ демонтаж и возведение перегородок;
    ▪ изменение конфигурации помещений;
    ▪ перенос сантехники и устройство новых «мокрых зон»;
    ▪ объединение помещений с разным назначением, а также любые работы, затрагивающие вентиляцию, водоснабжение и канализацию с изменением точек подключения.
  • Изменения, которые запрещены даже при наличии согласования
    Некоторые изменения узаконить невозможно. Под запрет попадают:
    ▪ вмешательство в несущие конструкции без разрешения авторов проекта;
    ▪ перенос кухни в жилую зону или спальню;
    ▪ устройство «мокрых» точек над жилыми помещениями соседей;
    ▪ объединение апартаментов с общими коридорами, а также любые изменения, нарушающие вентиляцию или систему пожаротушения. В таких случаях надзорные органы вправе потребовать вернуть всё в исходное состояние за счёт собственника.
Обеденная зона в виде вместительного стола прямоугольной формы со скругленными краями

Главное — понимать границу дозволенного, за которой начинаются изменения, которые не узаконить. Чем раньше вы обратитесь к специалистам, тем спокойнее, быстрее и безопаснее пройдёт ремонт.

Пошаговый алгоритм узаконивания перепланировки в апартаментах

Процесс узаконивания перепланировки в апартаментах отличается от стандартной процедуры для квартир и требует чёткой последовательности действий.
Ниже мы разобрали каждый этап, чтобы вы понимали, с чего начинать, какие документы готовить, к кому обращаться и как зафиксировать результат. Соблюдение этого алгоритма минимизирует риски и избавит от проблем при продаже или проверках.

  • С чего начать?
    Первый шаг — определить тип апартаментов (гостиничные, офисные, апарт-отель) и узнать, какие нормы к ним применяются. Запросите в управляющей компании технический паспорт, поэтажный план и выписку из ЕГРН, а также изучите проектную документацию здания, чтобы понять, где несущие стены и инженерные коммуникации.
  • Какие бумаги нужны для согласования?
    ‣ заявление;
    ‣ технический паспорт;
    ‣ поэтажный план и проект перепланировки;
    ‣ правоустанавливающие документы и согласие всех собственников (при долевой собственности), а иногда и согласие соседей.
    Список лучше уточнить в УК, так как требования зависят от статуса апартаментов.
  • Разработка проекта перепланировки
    Проект разрабатывает организация с лицензией или допуском СРО. В документации должны быть: исходный и новый планы помещения, схемы демонтажа и возведения перегородок, планы инженерного оборудования, а также расчёты безопасности конструктивных изменений. Без профессионального проекта согласование невозможно.
  • Согласование с управляющей компанией и надзорными органами
    Документы подаются в управляющую компанию — она проверяет соответствие проекта техусловиям здания, пожарной безопасности и санитарным нормам. При сложных изменениях могут потребоваться дополнительные согласования с авторами проекта дома или надзорными ведомствами. Сроки варьируются от двух недель до нескольких месяцев.
Кухня-гостиная в нейтральных тонах с акцентом в декоре и мебели

Что делать после завершения работ?

После ремонта представитель УК или комиссия осматривает помещение и подписывает акт о завершении работ. Если были затронуты скрытые конструкции, нужны акты скрытых работ.
Затем обратитесь в БТИ для внесения изменений в техпаспорт — это финальный этап, без которого перепланировка будет считаться незаконной.

Ищите компанию с допуском CPO для согласования своей перепланировки или для разработки дизайн-проекта? Оставьте заявку на беслатную консультацию от нашего специалиста!

Риски и последствия незаконной перепланировки в апартаментах

Незаконная перепланировка — это не просто формальность, а реальные финансовые и юридические риски. Даже если вы сделали ремонт без разрешения и он не мешает соседям, рано или поздно это может обернуться серьёзными проблемами.

1. Административная ответственность

При выявлении незаконной перепланировки надзорные органы или управляющая компания выписывают предписание с требованием устранить нарушения. Размер штрафов для физических лиц в Москве может достигать 2,5 тысяч рублей, но главная проблема не в сумме, а в обязательстве вернуть помещение в исходное состояние. Если предписание не исполнено в срок, собственника могут привлечь к повторной ответственности, а также ограничить в праве пользования помещением до устранения нарушений.
В отдельных случаях вопрос может быть передан в суд.

2. Проблемы при продаже

Наличие незаконной перепланировки — одна из частых причин приостановки сделок с недвижимостью. Банки отказывают в ипотеке, если в документах не совпадает фактическая планировка с техпаспортом. Покупатели либо требуют существенного снижения цены, либо вовсе отказываются от сделки. Даже если удастся найти покупателя, риск оспаривания сделки в будущем сохраняется. Большинство агентств недвижимости и юристов рекомендуют узаконивать изменения до выставления объекта на продажу.

3. Взыскание убытков и приведение в исходное состояние

Самый серьёзный риск — судебное требование демонтировать все несогласованные конструкции и вернуть помещение к первоначальному виду за счёт собственника. И это не только расходы на демонтаж и восстановление отделки, но и потеря времени, а в ряде случаев — невозможность проживания на период работ. Если перепланировка затронула инженерные сети общего пользования или повлияла на несущую способность здания, собственник может быть привлечён к ответственности за ущерб, причинённый дому или соседям. Суммы в таких случаях исчисляются десятками и сотнями тысяч рублей.

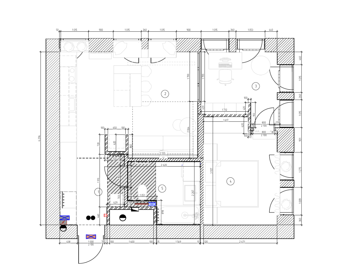
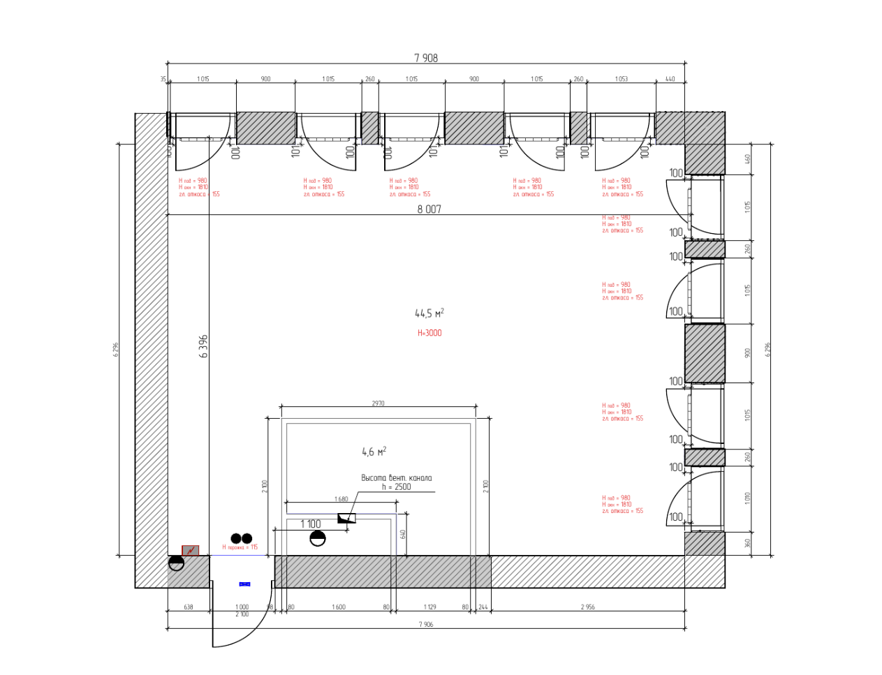
Что нужно узаконивать в апартаментах со свободной планировкой?

Апартаменты со свободной планировкой — это, по сути, пустое пространство без единой внутренней стены. Такая конфигурация даёт полную свободу для творчества, но одновременно создаёт иллюзию, что возводить можно что угодно и без последствий. На деле это не так.
Даже если изначально в помещении нет стен, любые новые конструкции, которые вы создаёте, считаются перепланировкой и требуют узаконивания. Это касается не только капитальных перегородок, но и лёгких гипсокартонных конструкций, которые меняют функциональное зонирование пространства.

Вот основные виды изменений, которые нужно оформлять:

  • Возведение любых стен и перегородок. Даже если вы просто отделяете спальную зону от гостиной — это уже изменение конфигурации.
  • Устройство санузла или кухни в новом месте. Если вы переносите «мокрые» зоны относительно существующих точек подключения, это требует согласования.
  • Объединение или разделение функциональных зон. Любое изменение исходной схемы помещения должно быть зафиксировано.
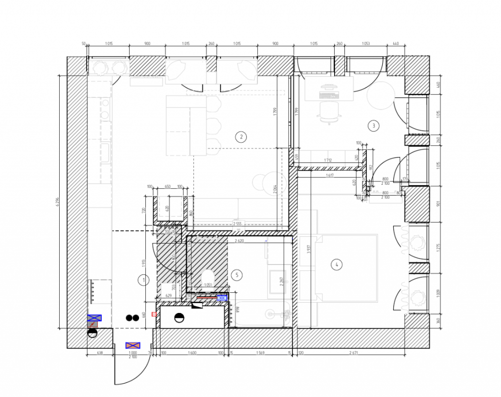
Апартаменты со свободной планировкой для семьи из двух человек

Почему это важно? Потому что апартаменты относятся к нежилому фонду, и требования к перепланировке здесь жёстче, чем в жилых квартирах. Даже если вы ничего не сносили (потому что сносить было нечего), новые конструкции всё равно нужно узаконивать.

На фото дизай-проект компании Domeo - мы самостоятельно узнаем о всех нормах планировки конкретного комплекса и под ключ согласовываем новую планировку для заказчика. Вы не тратите на это время и нервы.

Последствия игнорирования

Штрафы от контролирующих органов;
Проблемы при продаже — покупатели и банки часто отказываются от объектов с незаконной перепланировкой;
Риск демонтажа — могут обязать вернуть помещение в исходное состояние за ваш счёт.

Чтобы спокойно пользоваться апартаментами и не иметь проблем в будущем, перед началом работ стоит заказать проект перепланировки и согласовать его. Только тогда ваше пространство будет по-настоящему вашим — и законным.

Вывод

Изменения в апартаментах вполне возможны, но требуют ответственного подхода. Не стоит полагаться на удачу и начинать ремонт без чёткого понимания допустимых границ. Даже небольшие доработки лучше заранее согласовать с управляющей компанией. Это поможет избежать штрафов, судебных споров и проблем при продаже. Начните с анализа документов и проекта — и результат порадует без лишних сюрпризов.

Светлая спальня с различными вариантами освещения и стеклянной дверью

Услуги Domeo по ремонту апартаментов

Ищете компанию для выполнения ремонта?

Рассчитайте стоимость Вашего ремонта
и получите консультацию от нашего специалиста!
Расчет сметы и консультация бесплатные и ни к чему Вас не обязывают