11.03.2026

Примеры проектов ремонта двухкомнатной квартиры с реальными фото и видео

Содержание

  1. Подборка дизайнов двухкомнатных квартир из проектов Domeo
  2. Ремонт двухкомнатной квартиры по дизайн-проекту Domeo
Нежная спальня в пастельных тонах с компактным рабочим столом и встроенной подсветкой

Двухкомнатная квартира — один из самых популярных форматов жилья для семей с детьми и не только. Но как сделать её удобной, стильной и при этом функциональной?
В этой статье собраны реальные примеры дизайн-проектов двухкомнатных квартир от компании Domeo. Покажем не только визуализации, но и готовый объект после ремонта с видеообзором, чтобы можно было оценить результат вживую.

Подборка дизайнов двухкомнатных квартир из проектов Domeo

Выбрать дизайн для двухкомнатной квартиры бывает непросто — слишком много вариантов, стилей и планировок. Чтобы упростить задачу, мы подготовили 6 примеров двухкомнатных квартир в разной планировке и с разными дизайнами. От компактных двушки до просторных вариантов — смотрите, сравнивайте и находите идеи для своего интерьера

Квартира в брежневке на Даниловской набережной

👥Заказчики: молодая семейная пара с ребёнком.
💭 Пожелания: простой, красивый и бюджетный интерьер.
🎨 Цветовая гамма и акценты: серый в разных оттенках (от светлого на стенах до тёмного в мебели) с яркими вкраплениями — розовая рельефная плитка в ванной и акустические панели в детской.
🔑 Особенность проекта: отказ от сложных решений в пользу функциональности и экономии бюджета без потери стиля.

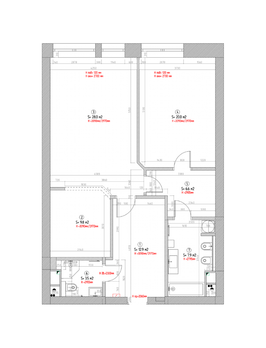
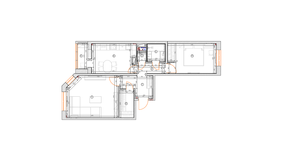
Планировка двушки 37 кв с гостиной и детской комнатой

Квартира в ЖК Рассказово

👥 Заказчики: семья с дочкой.
💭 Пожелания: светлое пространство со стеклянной перегородкой в спальне.
🚽 Перепланировка санузла: один санузел переоборудовали в гардеробную.
🛏️ Детская: вместительный шкаф до потолка.
🍽️ Кухня: остров с мойкой + большая рабочая зона у плиты.
🔑 Особенность проекта: компенсация систем хранения при сохранении лёгкости и света в интерьере.

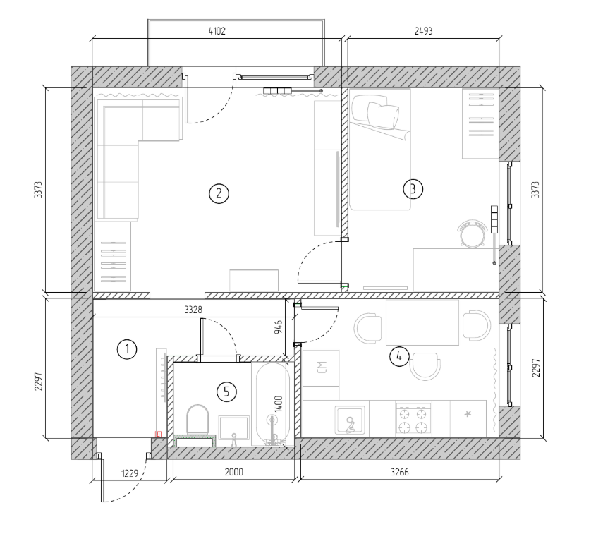
Планировка просторной 2-комнатной квартиры 60 кв с спальней и детской

Квартира на улице Сергея Бондарчука

🏢 Тип квартиры: квартира-распашонка, вторичное жилье.
👥 Заказчики: пара средних лет без детей (дети уже взрослые, живут отдельно).
📍 Назначение: периодическое проживание в Москве (основное жильё — за городом).
🏗️ Особенность помещения: очень высокие потолки — 3400 мм в чистом виде.
💭 Задача: подчеркнуть высоту потолков, добавив при этом активные текстуры в интерьер.

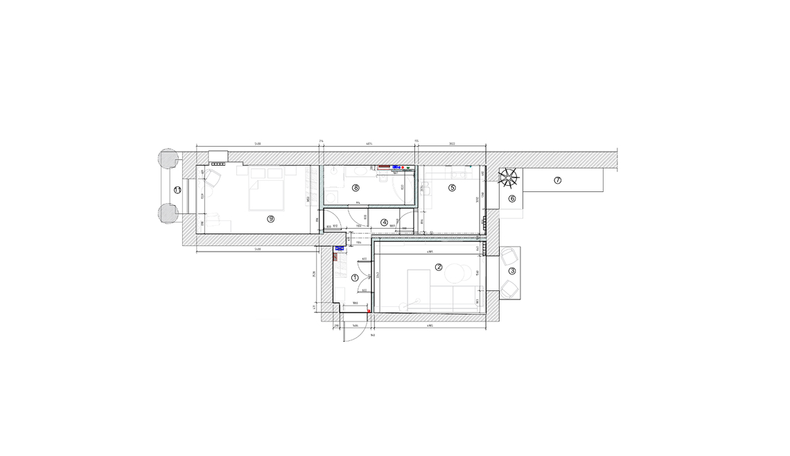
Планировка квартиры 53 кв с просторной кухней и спальней с балконом

Квартира в ЖК Большая Очаковская 2

👥 Заказчики: семейная пара зрелого возраста.
🏢 Тип жилья: вторичное, в квартире проживают более 10 лет.
💭 Задача: освежить ремонт, обновить коммуникации.
Идейный вдохновитель: супруга (знает все достоинства и недостатки квартиры).
🔧 Техническая часть: заказчик (точно знает, где какие коммуникации нужны или лишние).
🎨 Стилистическое и цветовое решение: сдержанное, по вкусу заказчиков.
💰 Бюджет: минимальный.

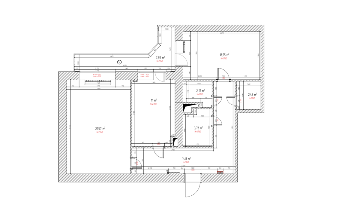
Планировка двухкомнатной вторички 62 кв с уютной гостиной и небольшой спальней

Квартира в ЖК Прибрежный

👥 Заказчики: семья с двумя сыновьями.
💭 Пожелания: любовь к антиквариату, лёгкий намёк на классику.
🎨 Цветовая гамма: приглушённо-зелёные и синие стены, белая мебель.
Детали интерьера: раритетные ручки, матовая латунь, утончённые светильники.
🔑 Особенности проекта:
▪ Кольцевой маршрут: из детской на балкон → на кухню → в коридор → обратно;
▪ В детской второй ярус для игр, создающий ощущение комнаты-трансформера;
▪ Кладовая сохранена без изменений, визуально обновлена;
▪ Расположение электрики и сантехники сохранено.

Планировка большой двушки 77 кв в яркой цветовой палитре

Квартира в сталинке на Донской улице

🏢 Тип жилья: сталинка
👥 Заказчики: семья
💭 Пожелания: баланс между стилем, современностью и функциональностью.
🎨 Выбранный стиль: неоклассика.
Особенности стиля: соединение классических форм с актуальными решениями и продуманной эргономикой.
🔑 Результат: интерьер, который сочетает элегантность и практичность для комфортной жизни.

Планировка двухкомнатной сталинки 60 кв в стиле неоклассика

Ремонт двухкомнатной квартиры по дизайн-проекту Domeo

📍 Адрес: ЖК Smolensky De Luxe, г. Москва
🏠 Объект: двухкомнатные апартаменты 88 кв.м с перепланировкой
👨‍👩‍👦 Заказчик: мужчина, ценящий современный стиль и функциональность

Цель: Провести деликатную модернизацию для создания строгого минималистичного интерьера с актуальной функциональностью.

Ключевые задачи:
➡️ Создать целостный минималистичный образ и полностью обновить обстановку:
◾️ Внедрить новую концепцию отделки из шпонированных панелей, дерева и серой палитры.
◾️ Заменить всю мебель и систему освещения в соответствии со стилем.
➡️ Модернизировать кухню и оптимизировать зонирование пространства:
◾️ Обновить кухонный гарнитур (замена фасадов, добавление верхнего ряда до потолка).
◾️ Четко разделить общую зону на гостиную и столовую.
➡️ Переустроить санузлы, повысив комфорт и эргономику:
◾️ Заменить ванну на душевую кабину и перенести стиральную машину в гостевой санузел.

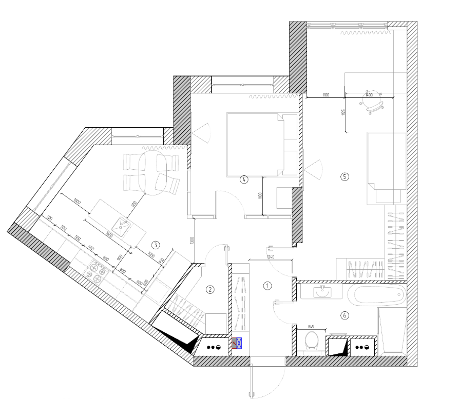
Исходное состояние двухкомнатных апартаментов 92 кв м

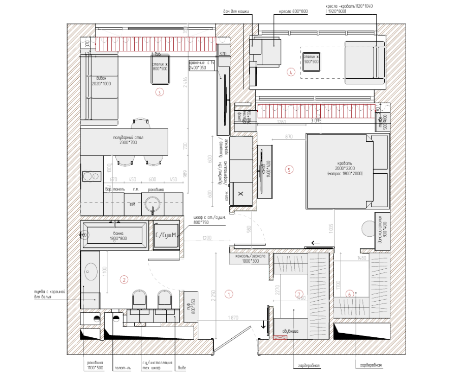
Чтобы устранить тесноту и раздробленность, мы провели ключевую перепланировку: объединили кухню и гостиную, преобразовав квартиру в светлые однокомнатные апартаменты открытого формата.
Для визуального зонирования использовали лёгкие металлические перегородки с декоративными вставками.

Цветовая концепция интерьера

Цветовое решение строго минималистичное и сдержанное. Палитра строится на контрасте нейтрального фона и тёплых текстур:
Оттенки серого создают спокойный современный фон;
Натуральное дерево и шпон в отделке и фасадах добавляют глубину и уют;
Металл в деталях освещения и фурнитуры вносит чёткость.

Сочетание серого, дерева и металла формирует целостный лаконичный образ, характерный для современного мужского интерьера.

Прихожая

Прихожая — это визитная карточка квартиры. Мы оформили её в стиле современного минимализма, чтобы первое впечатление было безупречным.

Гладкий встроенный шкаф со скрытым открыванием задаёт аккуратный тон. Тёплую ноту вносит акцентная стена, отделанная деревянными рейками.
Мягкая интегрированная подсветка вдоль стен создаёт гостеприимную атмосферу. Удобные серые пуфы у стены предлагают место для переобувания, добавляя практичный штрих домашнего уюта.

Кухня-гостиная

Пространство грамотно зонировано. Легкие металлические перегородки отделили гостиную от столовой, не нарушая цельности и светлого простора.
Кухня была модернизирована: новые фасады и шкафы до потолка увеличили место для хранения, создав элегантный вид. Практичный фартук из керамогранита под мрамор добавил изысканности.
В гостиной главным акцентом стала стена с деревянными рейками у телевизора, привнесшая тепло и объем.
Просторный обеденный стол адаптирован для разных событий — от семейных обедов до встреч с друзьями.

Спальня и гардеробная

Тёплую атмосферу задаёт деревянная реечная панель у изголовья с удобными полками.
Компактная рабочая зона не перегружает пространство. Подвесные светильники у кровати и окна с плотными шторами создают комфортное освещение, балансируя свет и приватность.

Также мы создали гардеробную с тонированными стеклянными фасадами. Встроенная подсветка делает пользование комфортным в любое время. Разные модули хранения (полки, ящики, штанги) позволяют организовать пространство под личные нужды.

Санузел

В главном санузле мы сделали ставку на современный комфорт и эстетику. Вместо ванны установили просторную душевую кабину, что соответствует динамичному ритму жизни.

Для отделки использовали крупноформатную плитку с благородной текстурой мрамора, создающую ощущение лёгкой роскоши при минимальном уходе. Натуральное дерево в душевой зоне добавило интерьеру тепла и тактильности.
Подвесная раковина и большое зеркало с подсветкой не только функциональны, но и визуально разгружают пространство, делая санузел светлее и воздушнее.

Гостевой санузел

Гостевой санузел был полностью преобразован с учётом функциональности и стиля. Ключевым решением стал перенос стиральной машины, что позволило оптимизировать планировку и повысить удобство для жильцов.

Отделка тёмной мраморной плиткой задала лаконичную и элегантную атмосферу. Овальная раковина на консоли стала выразительным акцентом, а практичные встроенные полки с подсветкой решили вопрос хранения.

Фотографии выполненных работ

Видеообзор готового ремонта

Услуги Domeo по ремонту 2-комнатных квартир

Ищете компанию для выполнения ремонта?

Рассчитайте стоимость Вашего ремонта
и получите консультацию от нашего специалиста!
Расчет сметы и консультация бесплатные и ни к чему Вас не обязывают