18.03.2026

Трехкомнатная квартира в панельном доме: фото и идеи для вашего ремонта

Содержание

  1. Преимущества планировки трёхкомнатной панельки
  2. Примеры дизайна для трёхкомнатной квартиры в панельном доме с фото
  3. Реализованный проект Domeo с выполненным ремонтом
 Фото трехкомнатной квартиры в панельном доме

Трёшка в панельном доме — это простор, который часто достается владельцам с «наследством» в виде типовой планировки, неудобных коридоров и набора маленьких комнат. Но у панельных квартир есть и важные плюсы: несущие стены здесь обычно расположены предсказуемо, а значит, пространство можно переосмыслить без сложных согласований.

В этой статье собрали идеи и реальные примеры того, как сделать трехкомнатную квартиру в панельном доме удобной, зонировать общие пространства и личные комнаты, грамотно вписать системы хранения и при этом не уйти в бесконечный ремонт.
Главное — понять логику планировки и использовать ее сильные стороны.

Преимущества планировки трёхкомнатной панельки

Панельные трёшки часто достаются нам по наследству или по бюджету, но это не значит, что они не могут быть комфортными. У таких квартир есть свои особенности, которые при грамотном подходе превращаются в плюсы. Рассмотрим комнаты, с планировкой которых Вам несомненно повезло.

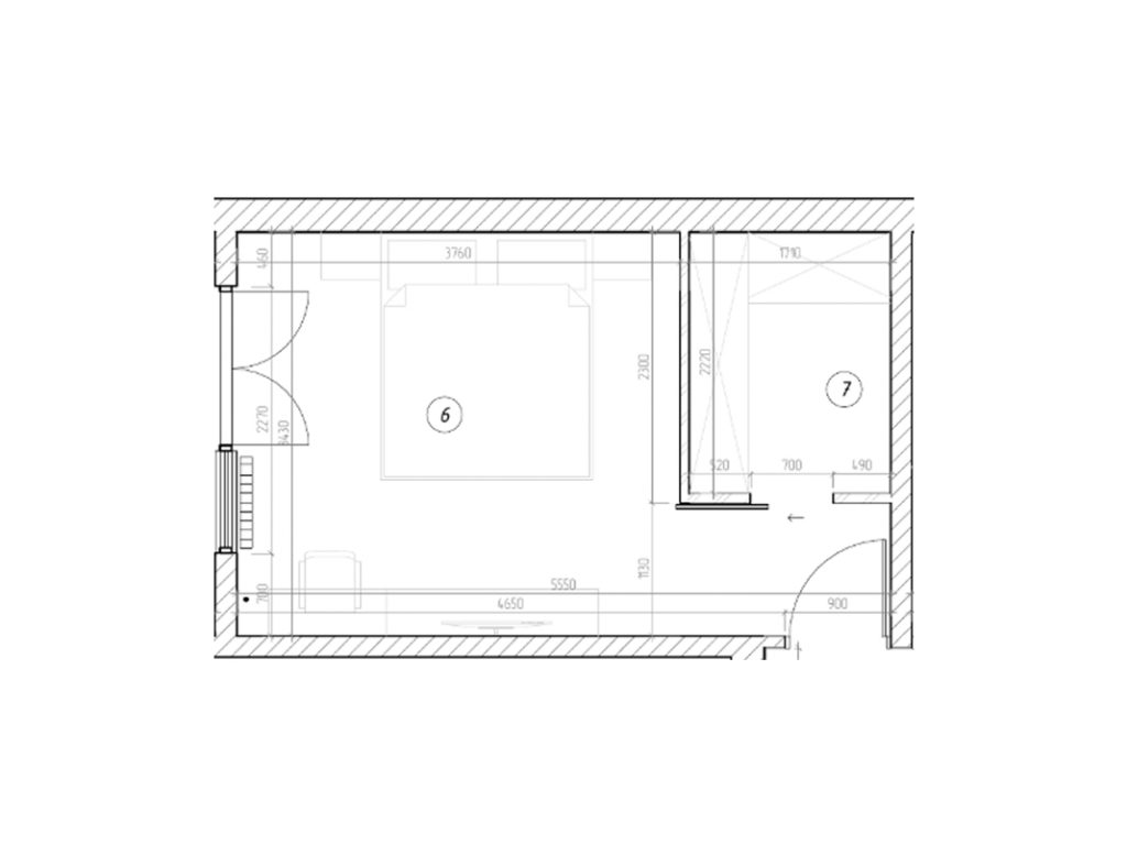
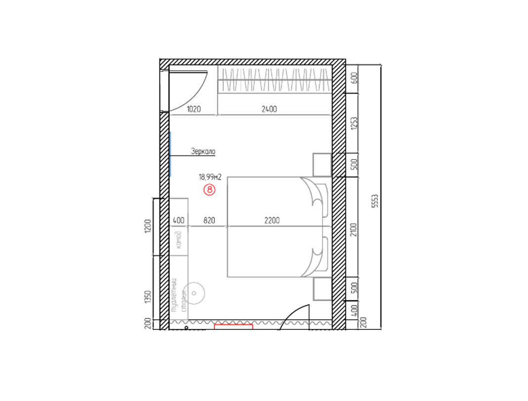
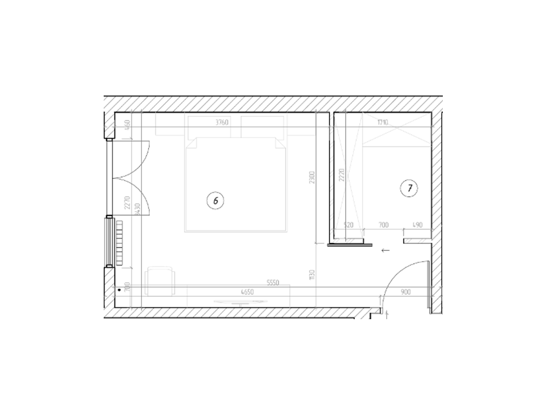
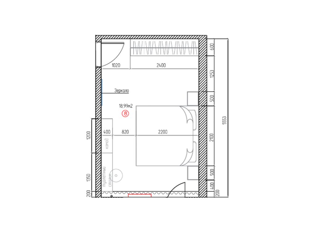
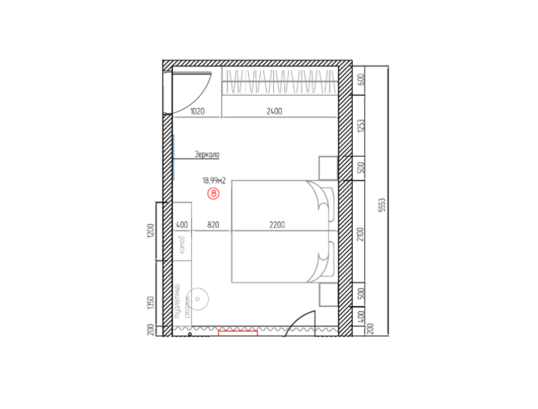
Полноценная спальня. Планировка трёхкомнатной квартиры в панельном доме позволяет организовать полноценную мастер-спальню. Здесь спокойно размещаются двуспальная кровать, вместительный шкаф и две прикроватные тумбы. При этом пространство не выглядит загромождённым — благодаря продуманной геометрии комнаты остаётся достаточно воздуха и свободы.

• Мастер-спальня 19 кв м в которой также спроектировали закрытую гардеробную

• Просторная спальня 19 кв м с вместительным шкафом

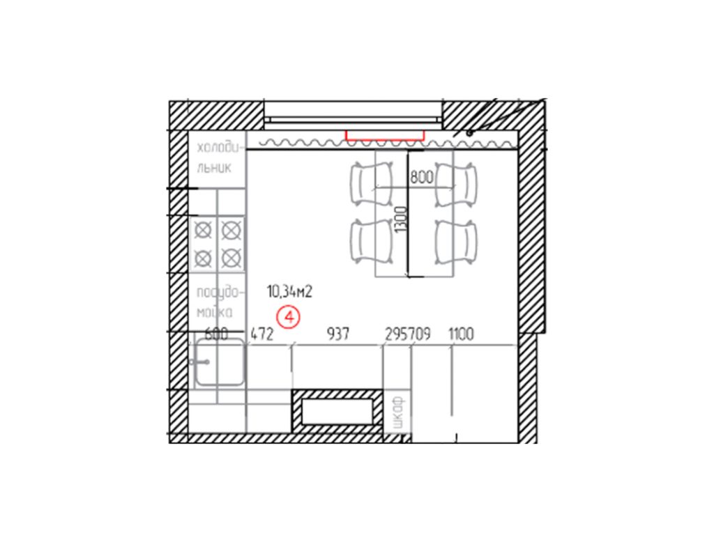
Кухня площадью от 10 квадратов — настоящая находка. Здесь без труда размещается полноценный обеденный стол со стульями, за которым комфортно собираться всей семьёй. А рабочая зона с гарнитуром получается настолько просторной, что хватает места и для техники, и для систем хранения, и для свободного перемещения.

• Кухня 13 кв м в стиле неоклассика с круглым обеденным столом

• Кухня 10 кв м с Г-образным кухонным гарнитуром

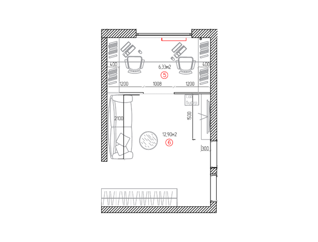
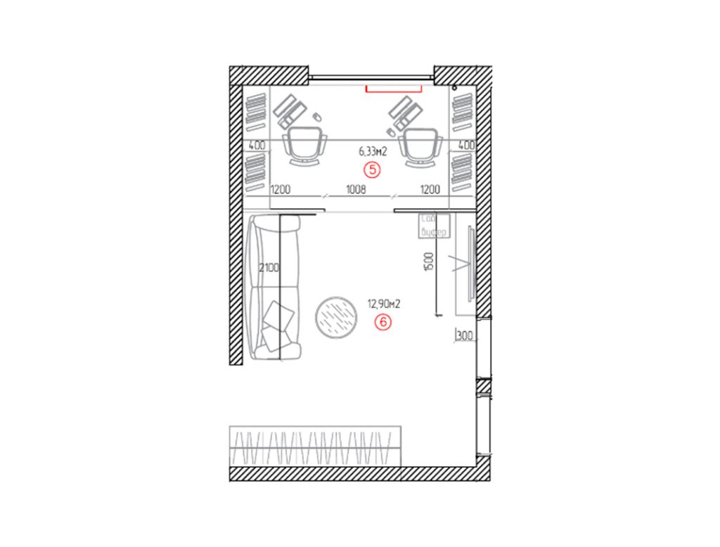
Гостиная в панельной трёшке часто имеет удачную геометрию — близкую к квадрату или вытянутую, но с пропорциями, которые легко обыграть. Это даёт свободу для зонирования: здесь спокойно можно разместить и мягкую группу, и обеденный стол, и даже компактный рабочий уголок. При этом пространство не выглядит заставленным — метров хватает, чтобы комната не казалась загромождённой.

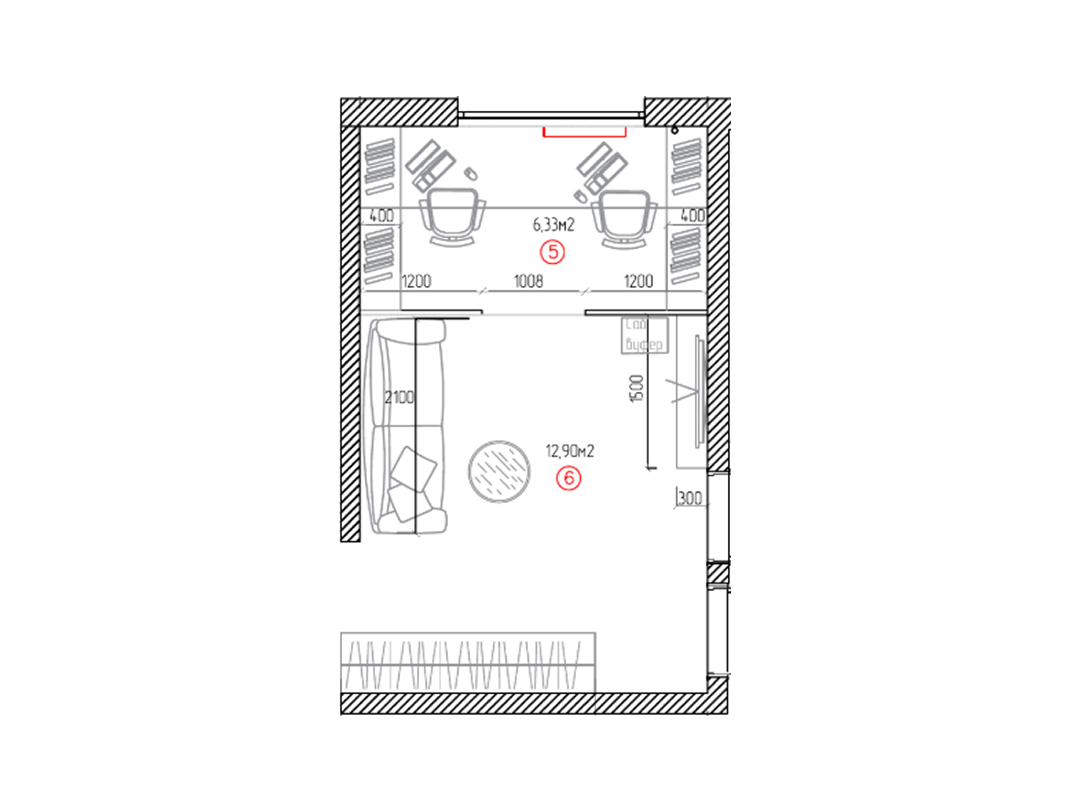
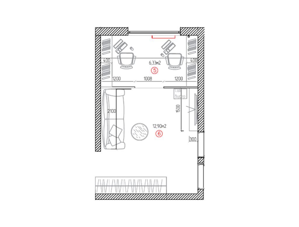
• Гостиная 19 кв м с зонированием рабочей зоны вдоль окна

• Гостиная 19 кв м с вместительным шкафом вдоль стены

Примеры дизайна от Domeo для трёхкомнатной квартиры в панельном доме с фото

1. Квартира для семейной пары с двумя детьми

Прихожая: Лаконичное пространство с компактной обувницей, гардеробным шкафом до потолка и ростовым зеркалом. Яркий акцент — изумрудный пуф.
Кухня выполнена в монохромной гамме, организованная по принципу open space, включает кухню-нишу и столовую зону с большим столом. Уют создаётся за счёт многоуровневого освещения.
Гостиная: Многофункциональная светлая комната для старшего ребёнка, зонированная цветом и мебелью. В зоне отдыха — синий диван и ТВ-панель, у окна — спальное место и рабочий кабинет с подвесным столом.

Родительская спальня: Минималистичное и монохромное пространство с удобной кроватью, подвесными тумбами и большим гардеробным шкафом.
Детская: Очаровательная комната для малыша, оформленная с учётом будущего роста. Включает зону отдыха с синим диваном-кроватью, рабочее место у окна и систему хранения. Интерьер дополняют тематические обои с планетами.
Ванная и санузел: Компактные помещения в салатово-изумрудной гамме. В ванной размещена вся необходимая сантехника и встроенная стиральная машина, а санузел содержит только унитаз.

2. Квартира для взрослой пары с эффектными акцентами

➖ Прихожая: Сдержанное пространство с деревянным шкафом, зелёной банкеткой и латунными деталями..
➖ В основе кухни — L-образный гарнитур с фасадами глубокого зелёного оттенка, деревянными элементами и встроенной техникой, дополненный барной зоной у окна.
➖ Центром гостиной служат зелёный диван и круглый стол у окна. Элегантность интерьеру придают стеновые молдинги, чёрные контрасты и вариативная подсветка.

➖ Уютную спальню формирует акцентная зелёная кровать, подвесные тумбы и гардеробная. Практичный стол и мягкое освещение добавляют комфорта.
В лаконичном кабинете, выполненном в серо-голубых тонах, собраны ключевые элементы: синий диван, чёрный рабочий стол и деревянный стеллаж с открытыми секциями.
Санузел в зелёных и древесных тонах включает душевую зону, биде и встроенную постирочную. Интерьер дополняет рельефная плитка и чёрная фурнитура.

3. Квартира для молодой пары с перепланировкой

Прихожая организована с помощью шкафов, которые скрывают все системы хранения, включая специальную нишу для робота-пылесоса. Отдельно оформлена зеркальная зона с деревянными панелями и встроенной подсветкой.
Кухню формируют светлый гарнитур со встроенной техникой, круглый деревянный стол, практичные материалы и тщательное освещение. Завершает картину продуманный уголок для домашнего любимца.
➖ За основу гостиной взята бежево-коричневая палитра, которую оживляют тёмно-зелёные кресло, пуф и фактурная стена.

Спальня в природной цветовой гамме объединена с гардеробной. Изюминкой стали настенные крепления для гитар, отражающие увлечения хозяев и добавляющие интерьеру индивидуальности.
➖ Функциональная детская в спокойных тонах разделена на спальную, рабочую и игровую зоны. Двухъярусная кровать, общий письменный стол на двоих и продуманная система хранения рассчитаны на рост и развитие ребёнка.
➖ Просторный санузел в нейтральных тонах с двойной раковиной, ванной и компактной встроенной прачечной зоной.

Реализованный проект Domeo с выполненным ремонтом

Квартира для взрослой пары


Семейная пара получила квартиру в наследство. Дом панельный, брежневка 1977 года постройки, отделка полностью устарела. Основное пожелание — убрать всё, что мешает, и сделать пространство открытым и просторным. Никаких лишних стен и тёмных углов.

Посмотрите видео по выполненному ремонту

Услуги Domeo по ремонту трехкомнатных квартир в панельных домах

Ищете компанию для выполнения ремонта?

Рассчитайте стоимость Вашего ремонта
и получите консультацию от нашего специалиста!
Расчет сметы и консультация бесплатные и ни к чему Вас не обязывают

Эти статьи могут быть вам интересны:

Ремонт квартиры в панельке: о чем важно знать до начала работ?

Что важно знать перед ремонтом в панельном доме? Разбираем особенности швов, проводки и перепланировки ➔

Брежневка: дизайнерские решения от Domeo для создания уютной квартиры

Ищете дизайн-идеи для стильного и функционального ремонта брежневки? ➔

Дизайн однокомнатной квартиры П-44: готовые решения и реальные примеры

Разбираем на примерах проектов Domeo как обыграть планировку однокомнатных квартир серий П-44 и П-44Т ➔