Дизайн проект квартиры вторичного жилья под ключ
Разработаем функциональный и стильный дизайн интерьера квартиры вторички под ключ для Вашего комфорта и современного ремонта.
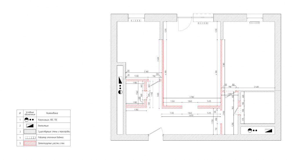
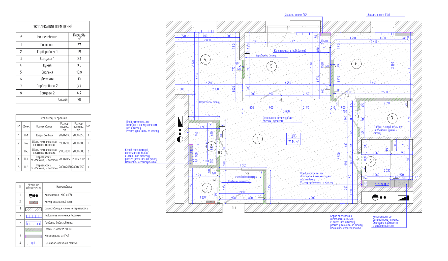
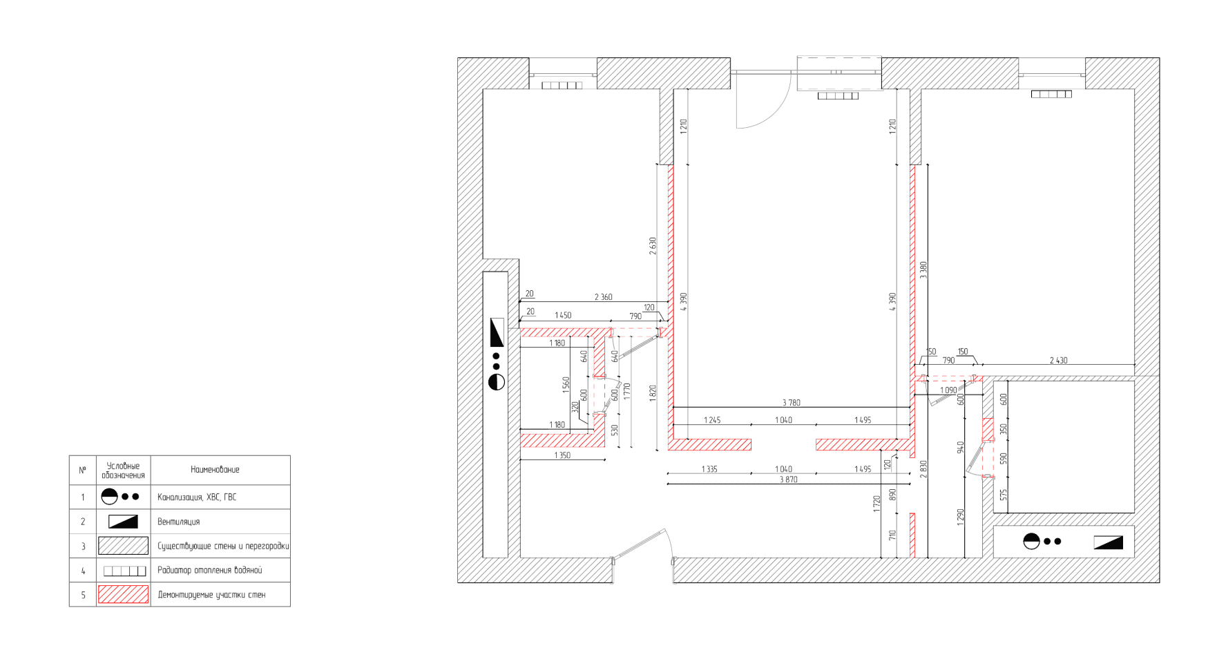
Используем только реальные материалы, которые можно купить в наших магазинах. Чертежи без ошибок, понятные любой бригаде.











































