16.12.2025

Нужен ли дизайн проект для ремонта квартиры?

Содержание

  1. Что такое дизайн-проект и что в него входит?
  2. Зачем нужен дизайн-проект?
  3. Что будет, если делать ремонт без проекта?
  4. Дизайн для малогабаритной квартиры
  5. Самостоятельна разработка дизайна
дизайн прихожей и кухни гостиной небольшой квартиры

Задумывая ремонт, вы наверняка задаётесь вопросом: нужен ли дизайн-проект для ремонта квартиры или можно обойтись без него? Это не просто «красивые картинки», а стратегический план, который экономит бюджет, время и нервы.
В статье разберём, когда проект необходим, что в него входит и что ждет тех, кто его игнорирует.

Что такое дизайн-проект и что в него входит?

Дизайн-проект — это полный пакет документов для ремонта: технических, эстетических и финансовых. Он превращает мечту об идеальном доме в чёткий план.
Это инвестиция, гарантирующая, что итоговый интерьер будет именно таким, как вы задумали.

коллаж предметов мебели и декора

Разработка включает два ключевых блока, каждый из которых страхует от ошибок и лишних трат.

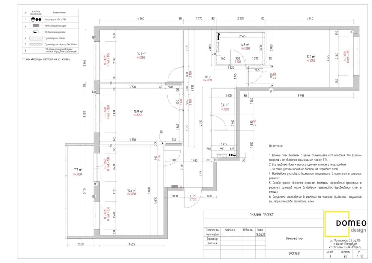
Планировочное решение и чертежи

Это первый и главный этап, на котором мы определяем функциональную схему будущего жилья. Мы проводим точные обмеры, анализируем ваши привычки и «закладываем» в план все: от расстановки мебели до прохода к розетке за диваном. Грамотное планировочное решение позволяет сразу предусмотреть все нюансы и избежать дорогостоящих переделок уже в процессе ремонта.
Это экономит ваш бюджет, время и нервы.

планировочное решение квартиры до ремонта со схемой расстановки мебели

Визуализация коллажей

Чтобы вы не гадали по образцам, мы создаём фотореалистичные 3D-визуализации. Вы сможете «погулять» по будущей квартире, оценить сочетание материалов и свет в разное время суток.
Это позволяет внести правки на этапе эскизов — в разы проще и дешевле, чем переделывать после закупки материалов.

Визуализация гостиной в современном стиле с мягким диваном, круглым столом и тёплым освещением

Зачем нужен дизайн-проект?

1. Рассчитываем бюджет заранее

Как это работает на практике:
◼️ Все наперёд известно. Стоимость работ и материалов закладывается в смету на этапе проектирования, а не формируется по ходу дела.
◼️ Техническая ясность. Подрядчик работает не с вашими словами «хочу свет здесь», а с конкретным планом размещения каждой розетки, выключателя и светильника, со схемой разводки.
◼️ Задача, а не импровизация. Для строителей проект — это однозначное техническое задание. Нет места фразам «я думал, вы сами догадаетесь» или «давайте сделаем вот так».

Итог: ремонт становится управляемым процессом с предсказуемым бюджетом и сроком. Вы платите за запланированный результат, а не за исправление ошибок по ходу работы.

2. Гарантия уютного и функционального результата

Уютный интерьер — это точный расчёт, а не случайность. Дизайн-проект создаёт пространство, где красота неотделима от удобства.

Как это достигается:
Эргономика под ваши привычки. Каждый сантиметр просчитан для вашего комфорта.
Единая концепция вместо разрозненных идей. Все предметы и материалы сочетаются, создавая целостный образ.
Предварительная «примерка». 3D-визуализация позволяет оценить и скорректировать интерьер до начала ремонта.

Итог: вы получаете персонализированное пространство, где приятно находиться и где всё работает на ваш образ жизни.

светлый интерьер обеденной группы и зоны гостиной

Что будет, если делать ремонт без дизайн-проекта?

Отказ от проекта — главная ошибка, которая перечёркивает мнимую экономию. Последствия касаются трёх ключевых сфер:

Финансы. Незапланированные переделки, ошибки и простои увеличивают смету на 30-50%.
Время. Сроки растягиваются на месяцы из-за неясных задач, простоев и поиска решений для внезапных проблем.
Нервы. Ежедневный стресс от споров с бригадой, спонтанных решений и разочарования в результате.

спальня в стиле современная классика с молдингами на стенах

В итоге, попытка сэкономить на проекте оборачивается высокой ценой. Профессиональный дизайн-проект — это не статья расходов, а страховой полис для вашего бюджета, времени и нервов. Он защищает от непредвиденных трат и гарантирует, что вложенные ресурсы принесут именно тот результат, о котором вы мечтали.

Дизайн-проект для малогабаритной квартиры

Приемы дизайна для малогабаритки:

Функциональная эргономика

Создание максимально удобного пространства за счёт:
✓ продуманных систем хранения (встроенные шкафы, ниши);
✓ чёткой планировочной «навигации» и многофункциональных зон;
✓ расчётов эргономики и планировки.

уютная кухня-гостиная в кофейных оттенках

Визуальное увеличение

Приёмы, которые «раздвигают» границы комнаты:
✓ светлая цветовая палитра и грамотная схема освещения;
✓ использование зеркал, глянца и крупноформатных материалов;
✓ целостность стиля и минимизация визуального хаоса.

белая кухня с обеденной группой и зеленым акцентным диваном

Самостоятельная разработка дизайн-проекта

Стоит ли делать дизайн-проект своими силами?

Вопрос «сделать самому или заказать?» закономерен. С одной стороны, обилие онлайн-конструкторов и вдохновляющего контента создаёт иллюзию доступности. С другой — дизайн-проект это не только картинка, а сложный технический продукт.

Условные плюсы самостоятельного пути:
✔️ Кажущаяся экономия. Нет прямых затрат на услуги дизайнера;
✔️ Полный творческий контроль. Вы принимаете все решения сами.

Реальные риски и минусы:
Технические ошибки. Неучтённые узлы коммуникаций, ошибки в замерах и нестыковки чертежей приводят к дорогостоящим переделкам;
Отсутствие целостности. Стилистическая эклектика и разрозненные покупки создают ощущение хаоса, а не гармоничного интерьера;
Конфликты со строителями. Без чёткого техзадания и рабочих чертежей возникают бесконечные споры «как вы себе это представляли?», что срывает сроки и увеличивает смету;
Потеря времени. Десятки часов на изучение программ, норм и поиск материалов, которые специалист тратит системно.

Выбор сводится к приоритетам: авантюра со скрытыми затратами (нервы, время, переделки) или управляемый процесс. Дизайнер как эксперт переводит ваши желания в точный план для строителей. Инвестиция в проект окупается предотвращёнными проблемами и идеальным результатом.

уголок кухни с обеденным столом и стульями - ремонт сделанный компанией домео

Услуги Domeo по ремонту квартир:

Ищете компанию для выполнения ремонта?

Рассчитайте стоимость Вашего ремонта
и получите консультацию от нашего специалиста!
Расчет сметы и консультация бесплатные и ни к чему Вас не обязывают