10.04.2025

Сколько стоит ремонт в квартире-студии?

Разбор сметы на примере проекта 2025 года

Содержание

  • Планировка реального проекта:
    студия в ЖК TopHills
  • Обзор проекта: дизайнерские коллажи
  • Вариант 1: Бюджетный ремонт
  • Вариант 2: Дизайнерский ремонт
  • Подведём итоги
Сколько стоит ремонт студии в новостройке от Domeo

Представьте, что у вас в руках ключи от новой квартиры-студии. Пространство небольшое – всего 28 м², но хочется, чтобы оно было и красивым, и функциональным. Нужно продумать удобную кухню и зону отдыха, желательно выделить гардеробную, а еще хотелось бы и подоконник превратить в дополнительное место, например, для чтения. Сколько идей!

Но сколько стоит сделать ремонт в студии?

Давайте разберем на примере реального проекта и сравним два варианта: бюджетный и дизайнерский - чтобы вы могли оценить реальную стоимость ремонта в Москве для такого помещения..

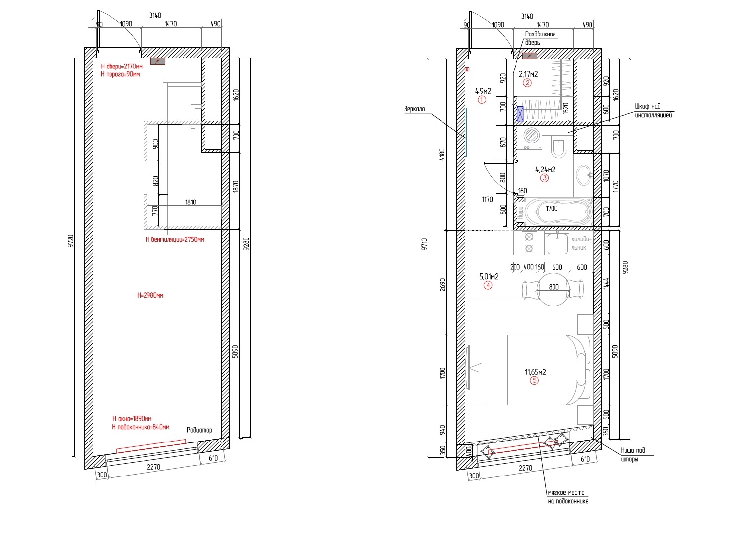
Планировка реального проекта: студия в ЖК TopHills

Студии популярны среди молодежи и пар без детей — это отличный вариант первого жилья.

В статье будет покажем, как создать стильный и функциональный интерьер даже на 28 м² на примере ЖК TopHills.
Рассчитаем смету в двух вариантах: бюджетном и дизайнерском.

Этот вариант планировки будет разобран максимально подробно.

Планировка ремонта квартиры-студии в новостройке от Domeo

Обзор проекта: дизайнерские коллажи

Кухня-спальня

Зона кухни плавно переходит в спальное место. Вместо массивных перегородок – зонирование с помощью материалов и освещения. Деревянные панели за кроватью создают уют, а подоконник используется как мини-место для отдыха.

Кухня-гостиная в квартире-студии в новостройке от Domeo

Санузел с постирочной

В небольшом санузле уместилась ванна, раковина с удобным шкафчиком, а за перегородкой спрятаны стиральная и сушильная машины.

Санузел с постирочной в квартире-студии в новостройке от Domeo

Гардеробная в прихожей

Здесь отказались от стандартного шкафа и сделали полноценную гардеробную за раздвижной дверью. Это решение позволило спрятать одежду, обувь и даже чемоданы, не загромождая пространство.

Гардеробная в прихожей в квартире-студии в новостройке от Domeo

Расценки на работы и материалы меняются из года в год, также есть региональные особенности: что-то где-то всегда или дороже, или дешевле. Мы возьмем средние цены на работы и материалы, ориентируясь на открытые данные. А вы сможете взять из наших планировочных решений много полезного для себя и сориентироваться в будущих тратах!

Давайте разберемся, во сколько обойдется создание такого же интерьера в вашей студии.

Вариант 1: Бюджетный ремонт

  • Отделка
    ✔ Стены – краска (300+ ₽/м² материал, 500+ ₽/м² работа)
    ✔ Пол – ламинат (от 1 200 ₽/м² + монтаж от 500 ₽/м²)
  • Мебель и техника
    ✔ Мебель: шкафы (Leroy Merlin от 15 000 ₽)
    ✔ Свет: базовые светильники от 2 000 ₽
  • Итоговая стоимость
    ✔ Черновая отделка: от 8 000 ₽/м²
    ✔ Чистовая отделка: от 6 000 ₽/м²
    ✔ Мебель и техника: от 150 000 ₽
Бюджетный вариант ремонта квартиры-студии в новостройке от Domeo

Вариант 2: Дизайнерский ремонт

  • Отделка
    ✔ Стены: декоративная штукатурка (от 1 500 ₽/м² + работа от 1 000 ₽/м²)
    ✔ Пол: инженерная доска (от 4 000 ₽/м²) или керамогранит (от 3 000 ₽/м²)
  • Мебель и техника
    ✔ Встроенные шкафы (от 80 000 ₽)
    ✔ Дизайнерские светильники (от 10 000 ₽)
  • Такой ремонт выйдет дороже:
    ✔Черновая отделка: от 12 000 ₽/м²
    ✔Чистовая отделка: от 10 000 ₽/м²
    ✔Мебель и техника: от 300 000 ₽
    Итого: от 1,2 млн ₽
Дизайнерская отделка квартиры-студии в новостройке

Дизайнерский подход Domeo к ремонту студии - смотрите результат

Подведём итоги

Как видите, стоимость ремонта может варьироваться в 1,5-2 раза — от 700-800 000 ₽ за базовый вариант и от 1,2 млн за дизайнерский.

Что важно?
✔ Чётко определить приоритеты (без чего точно нельзя обойтись?);
✔ Заранее спланировать бюджет (с запасом 10-15%);
✔ Найти баланс между экономией и качеством.

Помните: грамотное распределение средств позволит получить отличный результат без переплат.

Услуги Domeo по ремонту квартир студий

Ищете компанию для выполнения ремонта в новостройке?

Рассчитайте стоимость Вашего ремонта в новостройке
и получите консультацию от нашего специалиста!
Расчет сметы и консультация бесплатные и ни к чему Вас не обязывают