Дизайн однокомнатных квартир под ключ

ПО ЦЕНЕ ОТ 1400 РУБ ЗА КВ. М.

Узнайте примерную стоимость Вашего ремонта
Тип помещения:
Вид ремонта:
Площадь помещения:
Получите расчет за 60 секунд
{{lead_nonce}}
  • Фиксированная цена

    гарантирована по договору,
    без изменений

  • Рассрочка 0% на 18 месяцев

    с комфортным для вас платежом

  • 38 архитекторов

    с образованием: МАРХИ, Британская
    Высшая Школа Дизайна, МГХПА

  • поэтапная оплата

    Без предоплат. Вы платите отдельно
    за каждый этап после
    подписания акта приема

Создаём дизайн однокомнатных квартир, в которых стиль гармонично сочетается с функциональностью.

Мы подберём цветовую палитру, мебель и отделочные материалы, чтобы пространство выглядело современно и уютно.

Кухня-гостиная с большим зеленым диваном и деревянным кухонным гарнитуром с встроенной подсветкой

Портфолио наших дизайн-проектов однокомнатных квартир

Стоимость дизайн-проекта однокомнатной квартиры

Дополнительные услуги к дизайн-проекту однокомнатной квартиры

Что входит в дизайн однокомнатных квартир от Domeo?

  • Чертежи — подробные схемы с размерами, планировкой, расположением перегородок, мебели, электрики и сантехники.
  • Коллажи — наглядное сочетание отделки, цветов, текстур и мебели. Позволяют заранее согласовать стиль и атмосферу интерьера однокомнатной квартиры.
  • Визуализации — фотореалистичные 3D-изображения, на которых можно «увидеть» готовый интерьер, оценить освещение, цветовую гамму и расстановку мебели.
Гостиная в нейтральных тонах с мягким потолочным освещением и настенным бра
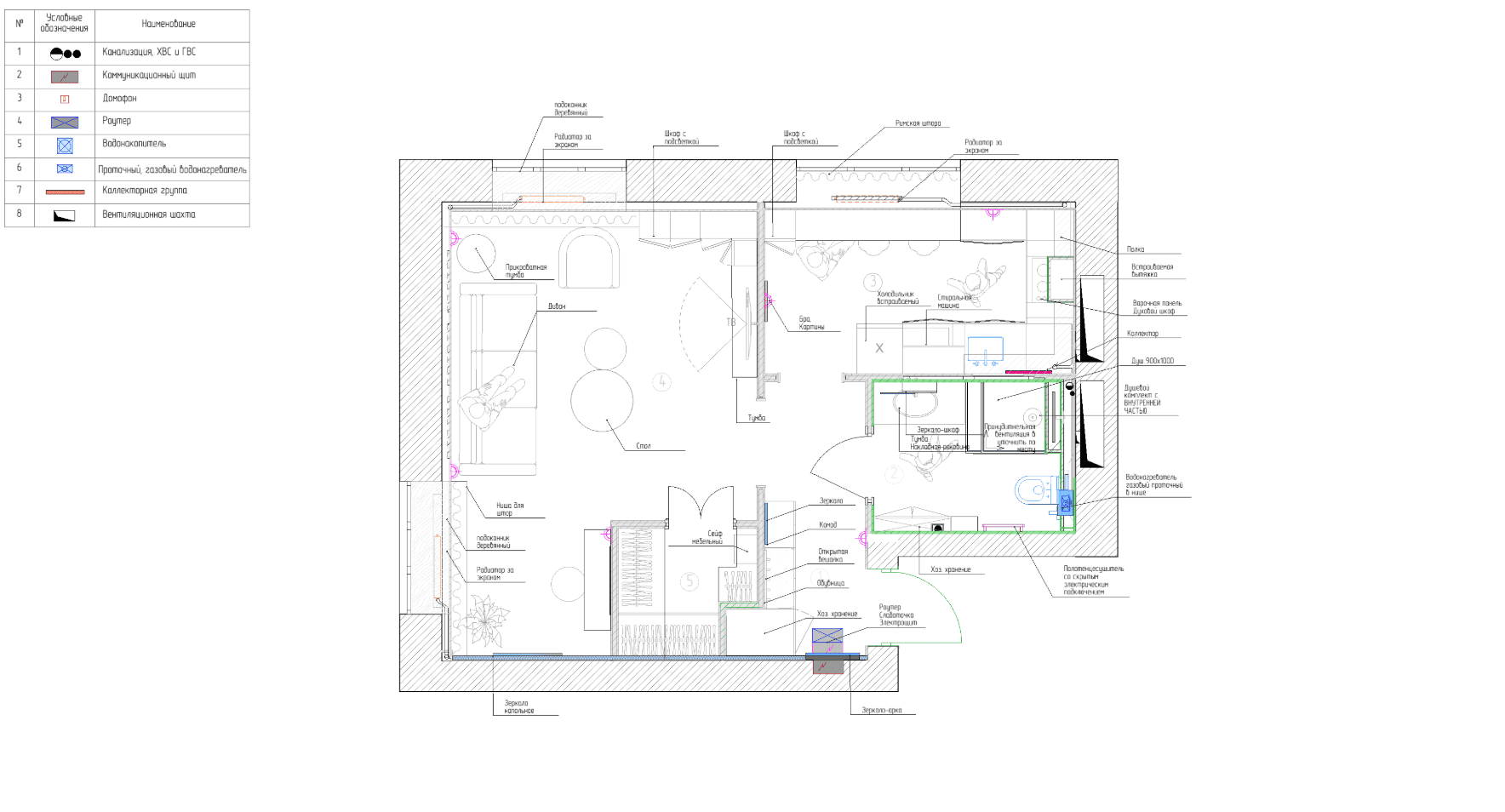
Чертеж однушки с подробными зарисовками
чертеж однокомнатной квартиры

Чертежи — точный план для ремонта однушки

Полный комплект рабочей документации. Для однокомнатной квартиры чертежи особенно важны — они помогают точно распределить пространство, предусмотреть каждую розетку и светильник, избежать ошибок и лишних трат во время ремонта.

Коллаж гостиной со светлой мебелью и круглым журнальным столиком
коллаж для однокомнатной квартиры

Коллажи — стиль и материалы в одном кадре

Наглядные подборки материалов, мебели, текстиля и декора, которые формируют облик будущей квартиры. В однокомнатных квартирах, где важна каждая деталь, коллажи позволяют заранее продумать и согласовать весь образ.

Гостиная в стиле неоклассика с декоративными панелями с растительным орнаментом и позолоченными элементами
однокомнатная квартира визуализация

Визуализации — однушка в готовом виде до ремонта

Позволяют «прогуляться» по будущей квартире, оценить цветовые решения, освещение и расстановку мебели. Для владельцев однокомнатных квартир это особенно ценно — вы сразу видите, как будет работать зонирование, сколько останется свободного места и насколько гармоничным получится интерьер.

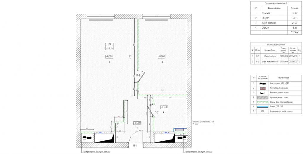
Дизайн-проект однокомнатной квартиры с перепланировкой

Перепланировка однокомнатной квартиры — это возможность превратить ограниченное пространство в комфортное и функциональное жильё.

Мы учитываем все нюансы — от расположения окон и инженерных коммуникаций до требований законодательства, а при необходимости готовим пакет документов для согласования перепланировки. Такой подход позволяет максимально эффективно использовать каждый метр и сделать квартиру удобной именно для вас.

Уютная спальня с белыми стенами и скрытым монтажом дверей и живыми растениями

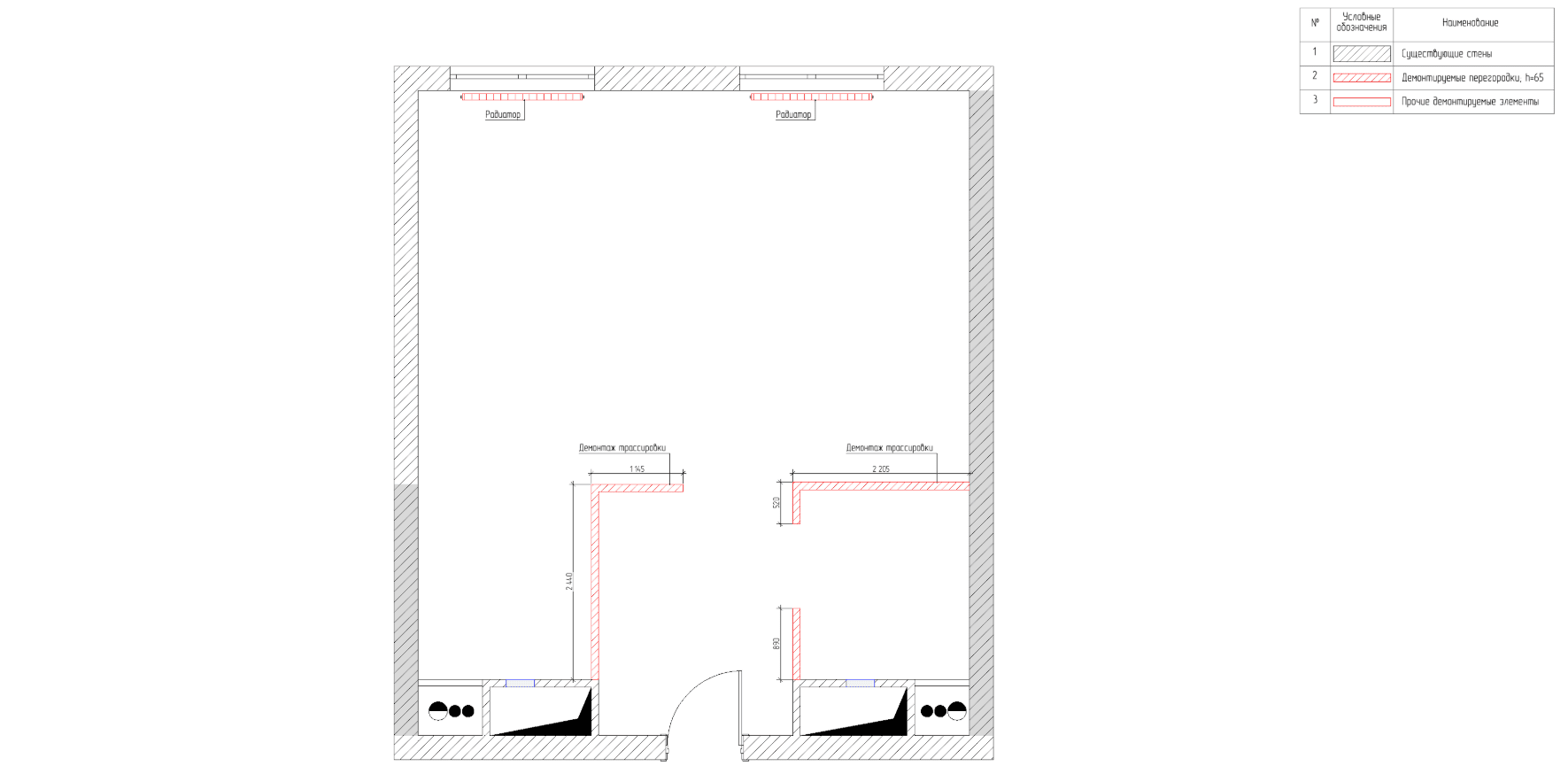
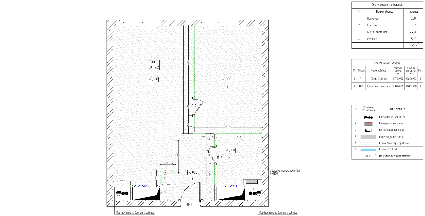
Пример перепланировки однокомнатной квартиры от Domeo

В исходной планировке у входа стояли две перегородки, делившие помещение на узкие зоны и «съедавшие» площадь. В дизайн-проекте мы убрали их, сохранив инженерные узлы на прежних местах.

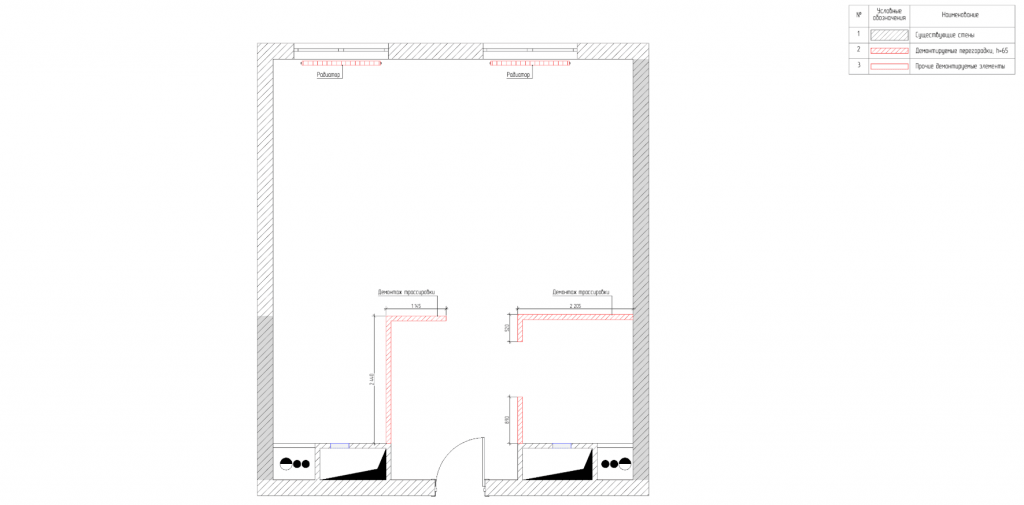
Теперь квартира — это единое, светлое и просторное пространство, которое легко зонировать на кухню, гостиную и обеденную часть. Такое решение сделало однокомнатную квартиру визуально больше и удобнее без сложного согласования.

Жилые комплексы в которых мы делаем дизайн однокомнатных квартир прямо сейчас

  • Дизайн однокомнатной квартиры в ЖК SLAVA под ключ от компании Domeo ЖК SLAVA
  • Дизайн однокомнатной квартиры в ЖК Басманный 5 под ключ от компании Domeo ЖК Басманный 5
  • Дизайн однокомнатной квартиры в ЖК Level Амурская под ключ от компании Domeo ЖК Level Амурская
  • Дизайн однокомнатной квартиры в ЖК Измайловский 11 под ключ от компании Domeo ЖК Измайловский 11
  • Дизайн однокомнатной квартиры в ЖК RiverSky под ключ от компании Domeo ЖК RiverSky
  • Дизайн однокомнатной квартиры в ЖК Небо под ключ от компании Domeo ЖК Небо

Отзывы о дизайне однокомнатных квартир от компании Domeo

  • 5,0316 отзывов
  • 4,8414 отзывов
  • 4,885 отзывов
  • 4,8644 отзыва

Полезные статьи в блоге

  • дизайн однокомнатной квартиры кв м

    Идеи дизайна однокомнатной квартиры 40 кв м фото

    Читать статью
    Фото дизайна однокомнатных квартир 40 кв
    Полезные статьи Domeo

    Фото дизайна однокомнатных квартир 40 кв

  • ремонт однокомнатной квартиры дизайн

    Этапы ремонта однокомнатной квартиры в новостройке

    Читать статью
    Разбираем план ремонта однушки пошагово
    Полезные статьи Domeo

    Разбираем план ремонта однушки пошагово